ペット&マリンスポーツ コンセプト住宅 【LIXIL受賞】 WORKS

物件情報

家族構成
ご夫婦
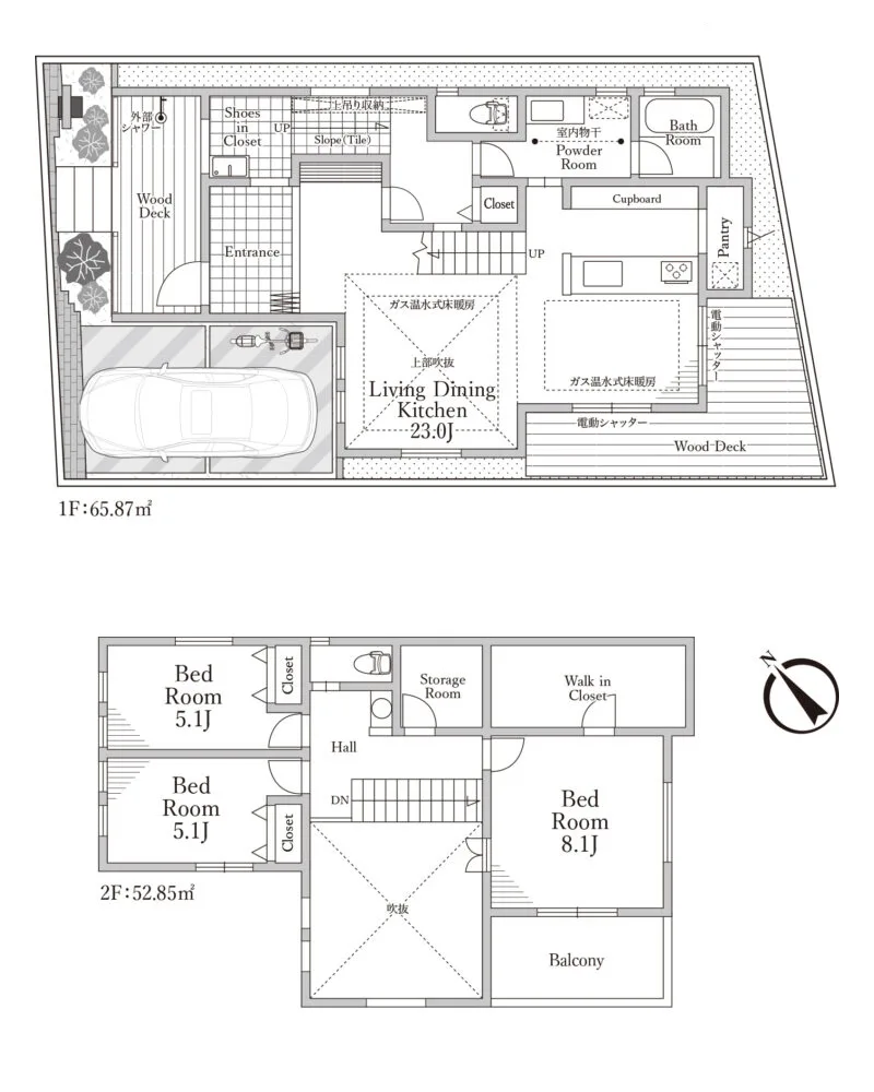
延床面積
104.74㎡
敷地面積
118.74㎡
工法構造
ツーバイフォー工法(木造枠組壁工法)
施工年月
2025年02月
物件写真
間取り図
写真
写真
写真
写真
写真
写真
写真
写真
写真
写真
写真
写真
写真
写真
写真
写真
写真
写真
写真
写真
写真
写真
写真
  • 
                          
  • ◾️玄関
    帰ってきてすぐにサーフィンの道具の片付けが出来る様に、洗い場と干せる空間を設け、土間からスロープで床にあがれたり、玄関からリビングにペット専用の入口も設けています。
    
    
  • ◾️床材
    室内ドアの木目のざらっとした素材感が視線の抜け感にプラスされて、より一層海風を感じさせます。
  • ◾️インテリア
    家具には、チェリーの色合いやアンティーク感があるものをセレクト。
    明るい爽やかな雰囲気に洗練されたミックス感が入っているので、空間がより引き締められています。
  • ◾️インテリア
    吹き抜けが気持ちいいカリフォルニアスタイルをコンセプトに計画されたコンセプトハウス。
  • ◾️階段
    オープンな階段は抜け感を与えるとともに、ブラックを使うことで、全体がぼやけることなく空間を引き締めています。
  • 
                          
  • 
                          
  • ◾️キッチン
    コンパクトながらも背面の上部は2列の棚で見せる収納、下部に隠す収納になっています。
    ダイニングテーブル上のブルーのマットなど、楽しんで暮らしている様子が目に浮かびます。
  • 
                          
  • 
                          
  • 
                          
  • 
                          
  • 
                          
  • 
                          
  • 
                          
  • 
                          
  • 
                          
  • 
                          
  • 
                          
  • ◾️洗面所
    海から帰ってきて、リビングを通らずに浴室に直行できる理想的なプラン
    明るく開放的な洗面脱衣室は小窓と大きな鏡で広く明るくし、浴室内の壁は海を思わせるムラ感のあるブルーを選択しました。
    
  • 
                          
  • 
                          
写真
写真
写真
写真
写真
写真
写真
写真
写真
写真
写真
写真
写真
写真
写真
写真
写真
写真
写真
写真
写真
写真
写真

ペット&マリンスポーツ コンセプト住宅 【LIXIL受賞】

【トータルコーディネート部門 優秀賞】
ペットと暮らすマリンスポーツの暮らしを実現できる物件に仕上がっています。
海にも近く、徒歩10分圏内に大型の公園もあるロケーションに立つこの物件は『趣味がサーフィンで中型犬を飼っている』というペルソナ設定に基づいて作られています。
床の色などの仕様は実際の日当たりなどを確認しながらその場で決めて進め、建売の分譲という難しい条件の中、ペルソナをしっかり作り込んだことで「海の近くでこんな暮らしがしたい」と思える物件に仕上がっています。

ーーーーーーーーーーーーーーーーーーー
◆こんな方におすすめの注文住宅です!

・とにかく“明るい家”で暮らしたい
・家事動線を重視して、日々の手間を少なくしたい
・収納が多い家、片付く家にしたい
・北欧・ナチュラル・シンプルなインテリアが好き
・家族が自然と集まるリビングを大切にしたい

光と木が織りなす柔らかな空気感
暮らしを豊かにする効率的な動線
そしてインテリアとしても美しい収納設計。

“心地よさ”と“使いやすさ”が高いレベルで両立した
家族の毎日を優しく支える住まいです。
Page
Top