モデルハウス MODEL HOUSE
南林間モデルハウスのご案内
高気密高断熱住宅で叶える
冬は暖かく、夏は涼しい家。
体感しなきゃわからない住宅性能を
実際に肌で感じませんか?
高い施工力で叶える、
高気密高断熱&省エネ住宅
快適な暮らしを考えるモデルハウス
-
高気密高断熱住宅だと何がいいのか
-
気密・断熱性能を高められる理由
-
省エネ性能を高められる理由
詳しくはこちらをご覧ください
-
サッシ
「YKK APW330」「LIXIL TW」の2メーカーを使用
-
断熱材
発泡ウレタンフォーム「フォームライトSL100」
-
気密パッキン
躯体接合部・床合板ジョイントへの気密パッキン
-
全熱交換換気システムを実演しながら確認できる
-
2社のサッシを実物を見比べることが可能
-
断熱材や外壁までの中身=仕組みを実際に確認できる模型
カーボンニュートラル&災害対策
-
カーボンニュートラル対策の一つとして南林間モデルハウスの消費電力を太陽光発電システムによる自家発電でまかなっています。
屋根に取り付けた太陽光パネル
-
蓄電池の導入も行っており、災害時の非常用電力としても活用可能!実際の稼働状況もタブレット端末で確認ができるようになっています。
モニターで稼働状況が確認できる
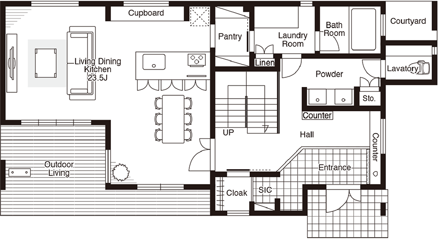
2リビング構成
モデルハウスを
ご覧ください。
-
照明計画について
南林間モデルハウスでは、内装の検討段階から部屋の用途などを含めて徹底的に照明計画を検討・配置をしています。内装や間取りによって配置バランスが難しい、照明計画。照明などの家づくりのイメージをヒアリングしながら南林間モデルハウスで実際の照明を確認して少しでもあなたの家づくりを形にしていきましょう!
-
外観について
家の顔となる外観は、白を基調としたシンプルかつシャープな外観デザイン。木目調横格子やタイルの重厚感をアクセントに、ブラックの玄関ドアなどで引き締め効果も!夜には照明によって日中と異なる雰囲気も味わえます。
-
外構
家づくりにおいて後回しにされがちの外構。しかし後回しにしたことにより、後悔するケースが多いため、外構も時間をかけて考え抜きたいポイントです。南林間モデルハウスでは外観にマッチさせるため外構もシンプルでシャープな印象になるようにまとめました。
例えばカーポートは、屋根が40mm厚という薄さ!雨どいが屋根と柱に内蔵されているところもワイド感がありつつもシャープさを生み出しているGoodポイント!
日本住宅ツーバイの注文住宅は、設計・プランニングに特徴があります。 日本住宅ツーバイでは、設計士たちの技術力を生かして、自由で機能的、そしてデザイン性の高い家づくりを行っております。 住まう人が快適に暮らせることを前提に、その機能をいかに損なわずにデザイン性を追求できるかに挑み続けているのです。
一つのプランを作成するのに他社さんよりも少し時間がかかりますが、その分、どこよりもじっくりとあなたの目線に立った心地よい空間づくりに全力を注いでいます。
アクセス
〒242-0006 神奈川県大和市南林間5丁目1-22
2台分駐車スペース有
小田急江ノ島線「南林間」駅 徒歩約7分











