【間取り事例付】二世帯住宅で知っておきたい成功ポイント! 2021.1.24
親世帯の高齢化、子ども世帯が結婚し親世帯となった際の育児など、ちょっと不便を感じたときに頼める距離や関係は、子ども(後の親)世帯には大変心強いものです。
しかし、住宅のつくりによっては二世帯にとって辛い環境になってしまうかもしれません。
そこで今回は、注文住宅専門の日本住宅ツーバイが、成功する二世帯住宅のポイントについてお話していきます。
二世帯のどちらかが「二世帯も良いかも」と感じているのなら、今回の内容がお役に立てるでしょう。
二世帯住宅の3タイプ
二世帯住宅は、次の3タイプに分けられます。それぞれのタイプにはメリットとデメリットがあり、親世帯と子ども世帯のそれぞれの視点でメリットとデメリットをみていくことが重要です。(1)完全同居タイプ
昔から二世帯住宅とイメージされるタイプです。一般的に、寝室以外はすべて共有する間取りになります。- キッチン
- ダイニング
- リビング
- トイレ
- 浴室
- 洗面
- 洗濯場など
■メリット
完全同居タイプのメリットは、いつでも相手のことを見守れるというところでしょう。親の体調や行動、子ども世帯が育児で困っているかどうかなど、いつでもお互いを助けることができるので、安心した空間で暮らすことができます。
また、二世帯住宅の中では完全同居タイプは最も費用を抑えられるタイプでもあります。寝室以外を共有するため、設備費をはじめとして1つ分で済むので、資金の負担も軽くなります。
■デメリット
完全同居タイプのデメリットは、プライバシーがほぼなくなるというところでしょう。自分の部屋へ入ればプライバシーは守られますが、休日にリビングでスウェットを着たままダラダラ過ごすというのは難しくなるケースが多いです。
共有しているスペースで過ごす際は、慣れるまでお互いに気を遣うことが多くなるかもしれません。
また、親世帯と子ども世帯では生活のリズムや物事への関心、価値観など、いつも話が合うということはありません。考え方の違いやちょっとしたことから、家庭内トラブルへ発展することもあり得ます。
■完全同居タイプがオススメな方
完全同居タイプがオススメの方は、昔から大家族での生活に慣れている方や、子どものときからお年寄りと一緒に暮らすことに慣れている方でしょう。昭和40年代以降に増えた核家族で大きくなった方にとっては、プライバシーを守りづらく、常に誰かに監視されているような気になるということもあり、完全同居を選ぶのは難しいといえます。
(2)一部共用タイプ
一部共用タイプとは、決まった部分だけを共用する二世帯住宅を指します。共用する部分はご家族によってさまざまですが、次のような部分を共用されることが多いです。- 玄関
- キッチン
- 浴室
- リビング
■メリット
一部共用タイプの大きなメリットは、毎日よくお互いの顔を合わせながらも、一日中一緒にいなくてもいいというところでしょう。また、サポートがほしいときには、呼べば声が届く場所に誰かがいるので、高齢の方や妊娠中や子育て中のママにとっては大変心強いといえます。■デメリット
一部共用する部分によっては、二世帯での暮らしが上手くいかないこともあります。特に水回りに関しては、価値観の違いから共用にするとトラブルになりやすいです。できれば、共用する部分はリビングと浴室くらいにしておき、玄関やキッチンは分けておくのがオススメです。
■一部共用タイプがオススメな方
親世代と暮らすことに抵抗はないが、ある程度のプライバシーは確保したい方にオススメです。また将来、三世帯になる可能性も考えるとある程度プライバシーを確保できるスペースがあるほうが後に便利だと感じるかもしれません。
(3)完全分離タイプ
完全分離タイプとは、住宅は一棟だが中で分かれている状態です。普段はそれぞれの世帯が独立して暮らしていますが、家の中でつながっている廊下や部屋があるので、そこからお互いがサポートできるようになります。■メリット
完全分離タイプのメリットは、プライバシーが守りやすいことでしょう。リビングやキッチンなども別々なので、お互いにこれまでの暮らし方を変える必要がありません。必要なときだけお互いに行き来できるので、気兼ねなく暮らしを楽しむことができます。核家族で暮らしてきた方にオススメのタイプといえます。
■デメリット
完全分離タイプのデメリットは、費用です。完全分離タイプの場合、設備が二倍必要になります。キッチンや浴室、トイレをはじめとして世帯単位に必要なので、自ずと費用も増加します。また、これは間取りの設計にもよりますが、比較的広めの敷地が必要です。世帯ごとに暮らせる間取りを考えるので、単純に二世帯分が収まる敷地が必要なのです。
■完全分離タイプがオススメな方
費用と敷地面積は必要になりますが、二世帯住宅を考えているのなら完全分離タイプが一番オススメです。昔と違って年齢に関係なく暮らし方は多様化しています。また、仕事や学校も従来のように決まった時間、決まった場所で活動するとは限らなくなってきています。こういったことを考慮すると、それぞれの世帯が簡単に助け合いながらもライフスタイルを守れる完全分離タイプが、暮らしやすいと日本住宅ツーバイは考えています。
後悔しないためにきちんと検討しようす
二世帯住宅で暮らし始めてから後悔しないために、しっかりと検討してほしいポイントをご紹介します。(1)暮らし方
「親子だからいつまでも同じ」と考えてしまいやすいですが、実際にはそんなことはありません。家族の中でも生活スタイルは、各々違っています。そして社会へ出てからの経験によって価値観も変わっていきます。
二世帯住宅を検討するときには、お互いの暮らし方を正しく伝え、納得しておくことが重要です。
(2)将来
誰もが歳をとっていきます。そのため、二世帯住宅を検討するときには、5年後10年後も考えて間取りを設計しておきましょう。特に親世代に関しては、5年10年で急激に筋力が低下し、歩くことが難しくなるケースもあります。
- トイレ
- 浴室
- キッチン
- 玄関
(3)収納
忘れがちなのが収納です。二世帯ということは、二家族分の荷物が集まるということです。まずは必要のないものは、捨てるようにしましょう。必要なものだけにして、家の収納スペースを検討します。
- 庭の物置に一緒に入れられるもの
- 別々に収納スペースが必要なもの
(4)光熱費
後から問題になりやすいのが、光熱費の支払いです。どちらかの世帯が「使ってないのに半分ずつは納得できない」ということがきっかけになることもあります。支払いの割合や方法については、最初に話し合っておくことが大切です。
知っておくとプラスになることはコレ!
他にも知っておくと、プラスになることがあります。(1)費用負担
- 二世帯住宅の資金における負担をどうするのか
- 半分ずつ負担するのかどうか
- 住宅ローンは誰の名義で借りるのか など
(2)登記と相続
登記と相続に関しても、一緒に行っておくのがオススメです。後回しにすると、もし親が亡くなったとき、相続問題につながる可能性があります。(3)税金
税金の負担に関しても理解しておく必要があります。一般的に二世帯住宅の場合、税金が安くなる制度を利用しやすくなります。建築を依頼されるときには、一緒に税制優遇に関しても確認しておくことを忘れないでください。(4)ランニングコストの負担
暮らしがはじまってからわかる、光熱費をはじめとしたランニングコストの負担です。「どちらかの世帯が多く払っている」と感じるとトラブルになります。生活の状態を確認しながら、使っている世帯が多めに負担するのが理想的です。
(5)世帯の違いは暮らしの時間も違う
親子であっても暮らしの時間は違います。- 仕事へ行く時間
- 学校へ行く時間
- 帰宅する時間
- お風呂の時間
- 食事の時間
「寝ているのにシャワーを浴びるなんて」「寝ている時間なのに玄関を開けるから音が気になる」いろいろな理由が出てきます。
こういった問題は、ある程度最初にわかるので、間取りを工夫することで解決することもできます。
例えば、親世帯の寝室と子ども世帯の浴室は離したり、玄関は音がしづらいものを選んだりと、暮らしの時間やタイミングから考えることで、対策することが明確になってきます。
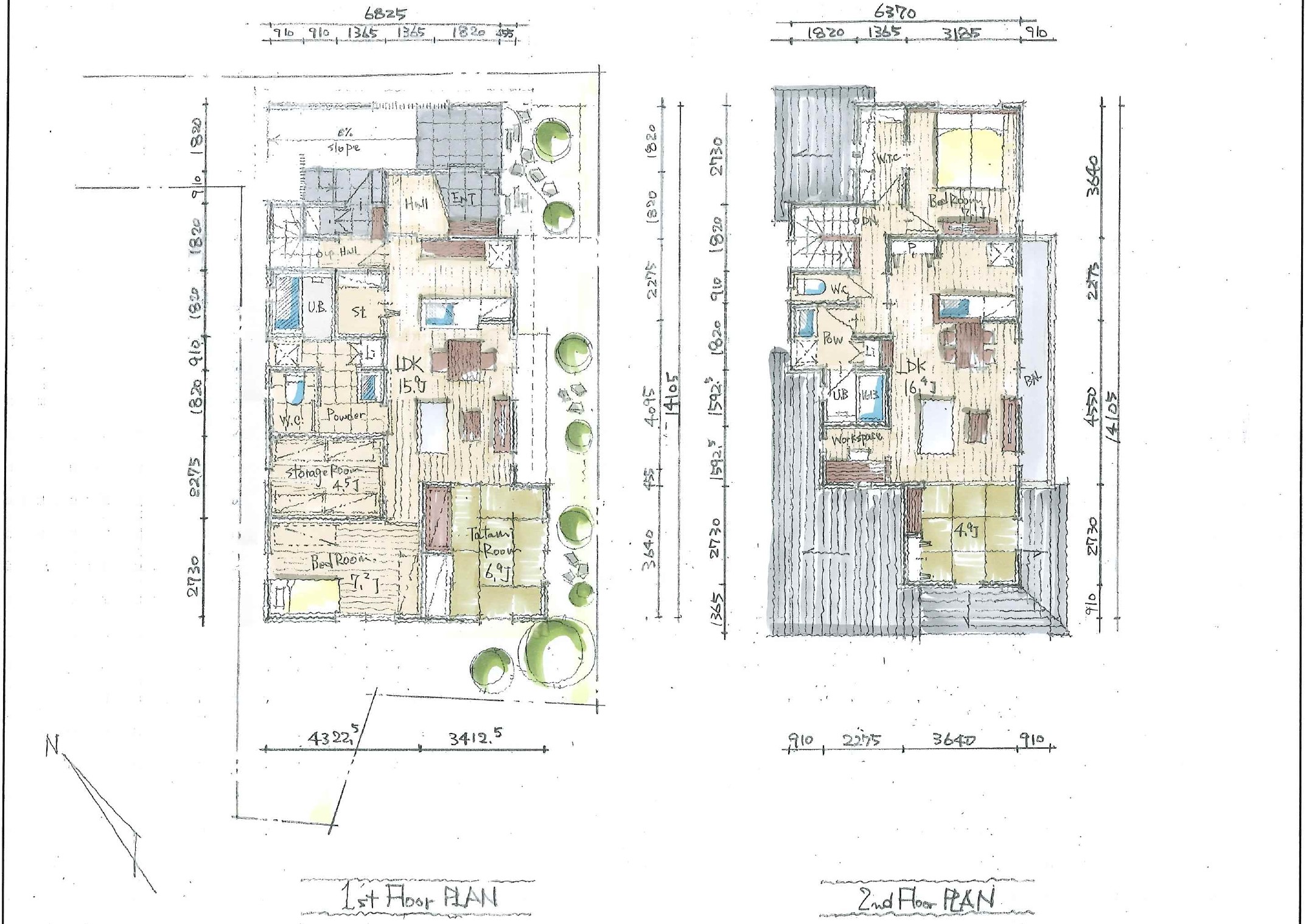
【間取り事例】二世帯住宅の間取りをご紹介
ここで日本住宅ツーバイが設計した、二世帯住宅の間取りを一件ご紹介します。
二世帯住宅で暮らしを豊かに
二世帯住宅は、間取りやお互いの認識が上手くいくと、大変楽しく暮らせます。反対に、価値観の違いで衝突すると、論理的に解決することができないため、改善することは大変難しくなります。私たちとしては二世帯住宅で楽しく暮らしていただきたいので、今回お話しましたようなことを、検討段階でしっかりとお互いの世帯で話し合っていただきたいです。
二世帯住宅は決して安い買い物ではありません。また、住み始めれば上手くいくというものでもありません。
別々の価値観、別々の生活スタイルということを忘れずに進めていただき、良い家をつくっていきましょう。
もし家づくりで悩むことがあったときは、ぜひ日本住宅ツーバイにご相談ください!
ARCHIVE
- 2026年4月 (2)
- 2026年2月 (1)
- 2026年1月 (3)
- 2025年12月 (3)
- 2025年10月 (1)
- 2025年9月 (1)
- 2025年7月 (2)
- 2025年4月 (1)
- 2025年3月 (1)
- 2025年1月 (2)
- 2024年12月 (1)
- 2024年9月 (1)
- 2024年8月 (1)
- 2024年4月 (2)
- 2024年1月 (1)
- 2023年12月 (1)
- 2023年11月 (1)
- 2023年8月 (1)
- 2023年7月 (5)
- 2023年6月 (6)
- 2023年5月 (1)
- 2023年4月 (6)
- 2023年3月 (3)
- 2023年2月 (2)
- 2023年1月 (4)
- 2022年12月 (4)
- 2022年11月 (1)
- 2022年10月 (1)
- 2022年8月 (1)
- 2022年7月 (1)
- 2022年6月 (3)
- 2022年5月 (2)
- 2022年4月 (4)
- 2021年12月 (2)
- 2021年11月 (1)
- 2021年10月 (2)
- 2021年9月 (1)
- 2021年8月 (2)
- 2021年7月 (6)
- 2021年6月 (6)
- 2021年5月 (2)
- 2021年4月 (8)
- 2021年3月 (3)
- 2021年2月 (4)
- 2021年1月 (7)
- 2020年12月 (5)
- 2020年11月 (5)
- 2020年10月 (3)
- 2020年8月 (1)
- 2020年7月 (2)
- 2020年2月 (1)
- 2020年1月 (1)
- 2019年12月 (1)
- 2019年7月 (1)
- 2019年4月 (1)
- 2018年7月 (1)
- 2018年2月 (1)
- 2018年1月 (1)
- 2017年12月 (1)
- 2017年10月 (1)
- 2017年7月 (1)
- 2017年5月 (1)
- 2017年4月 (1)
- 2017年3月 (1)
- 2017年2月 (1)
- 2017年1月 (2)
- 2016年12月 (3)
- 2016年11月 (1)
- 2016年10月 (1)